Templeton Reserve Residence


This single family residence, located in the Templeton Reserve Community in Oak Brook, is a strikingly contemporary composition of stone, glass, wood and stucco. Long, horizontal planes define the floors, which are then articulated with oversized glazing and linear wood panels. At the base of the home, stone clad walls blur the boundaries between inside and out, as do the extensive terraces and balconies.

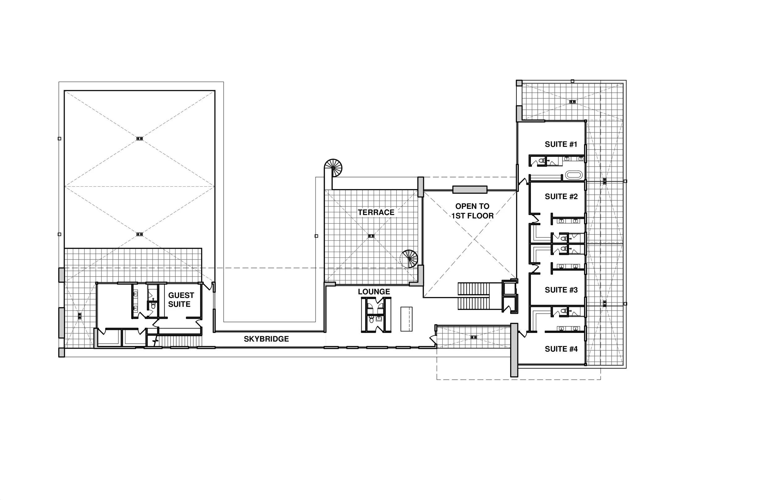
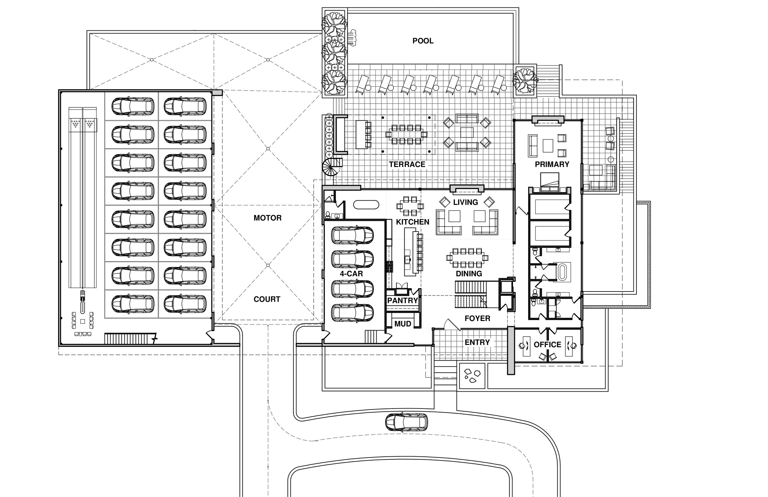
The 6 bedroom, 7.3 bath home is flooded with daylight from large expanses of glass, offering views of the landscaped grounds and woods. The home’s open plan and soaring ceilings invite you in, offering a sophisticated yet comfortable arrangement of living spaces. A 4 car daily-use garage and 16+ car collector’s garage enclose a private motor court, connected to the terraced outdoor living spaces and infinity pool.

Location: Templeton Reserve, Oakbrook, IL

Project Size: 9,377 SF + Basement, 4-Car & 16-Car Garages

Civil Engineering: Engineering Resource Assoc.

Landscape Design: Christy Webber Landscapes


FIRST FLOOR PLAN & SITE

SECOND FLOOR PLAN

SOLAR GAIN VS. WINDOWS

The homes extensive use of glazing is balanced with deep overhangs, preventing overheating from solar exposure while maximizing views.

STRUCTURAL CANTILEVER

Cantilevered structural steel framework extends out from the homes mass to create extensive 2nd floor terraces, adding to the modern linear design.

BALCONY EDGE DETAIL