The front of a renovated workers cottage in Roscoe Village Chicago

Worker’s Cottage Renovation


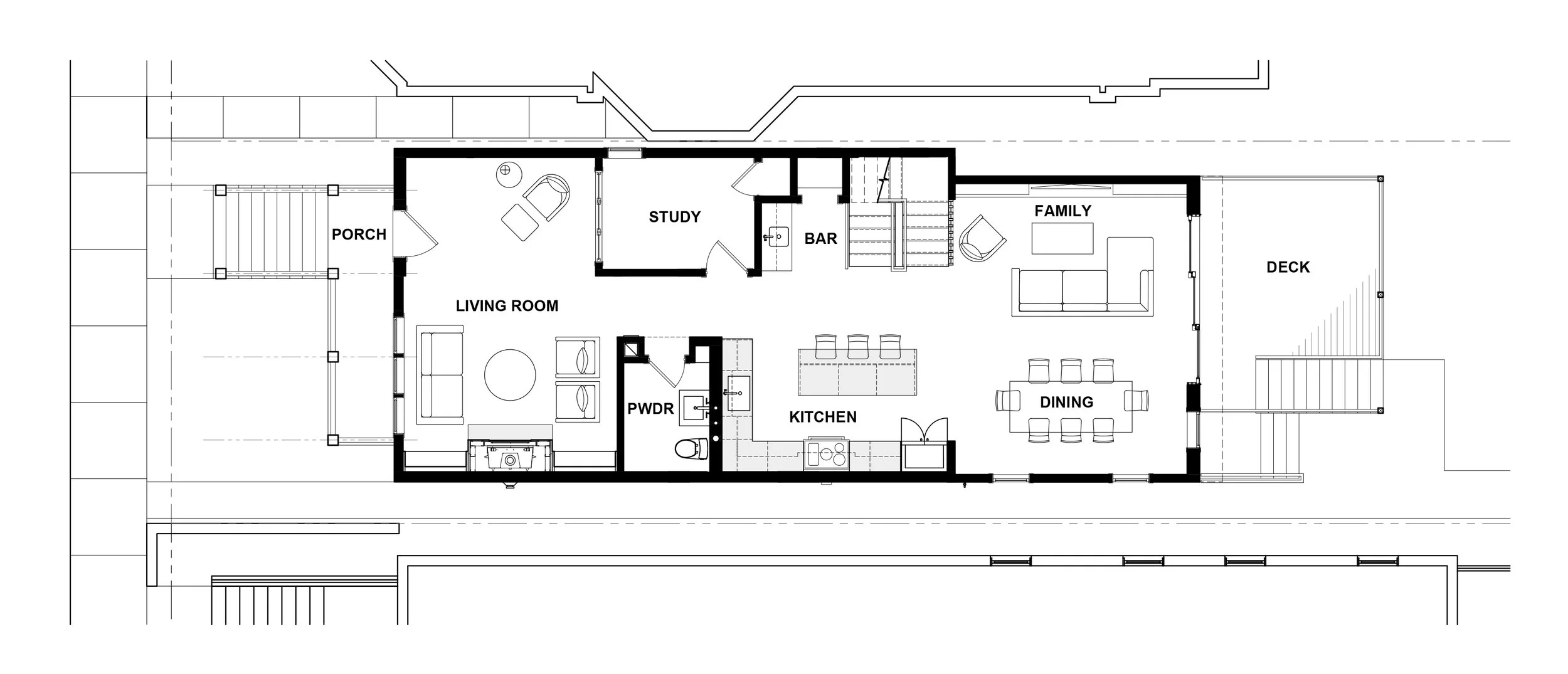
An existing single family worker’s cottage from the early 1900’s underwent a gut rehab + rear addition to modernize the layout and expand the footprint for a young family. The sensitive design maintained the scale and character of the front facade, while providing an updated interior; including a new kitchen, open stair, and light-filled family and dining room addition at the rear. This addition leads to a raised deck through a large multi-slide glass door, allowing the outdoors to become a part of the interior living spaces in warmer months.

In a neighborhood filled with tear-downs, the design stands as a case study in the preservation of existing housing typologies.

Location: Roscoe Village, Chicago, IL

Project Size: 3,340 SF, 2 Stories + Basement

General Contractor: Big Brothers Development

Millwork: Crafted Wild

Windows: Marvin


A rendering of the proposed front of the project
The project under construction, showing Hardie siding and shake shingles

The dark exterior siding and windows serve to highlight the wood tones of the front door, porch, and shake shingle gable accent.

A rendering of the proposed design on Hoyne Avenue in Roscoe Village
The project under construction, showing the trellis and deck

The rear of the home is unbound by convention, and stands as a counterpoint to the more traditional front. A large trellis offers shade to the east facing deck and sliding doors of the family room.

FIRST FLOOR PLAN

The modern interior of the addition
The new stair and bar area of the project on Hoyne Ave. in Roscoe Village

Unexpected custom touches are featured throughout the home, such as this bar space tucked underneath the new open stairway to the 2nd floor. A sliding door to the right of the bar reveals the pantry.